Potřebuji řešit Nejčastěji hledáte logo

Potřebuji řešit

  • Veřejné zakázky
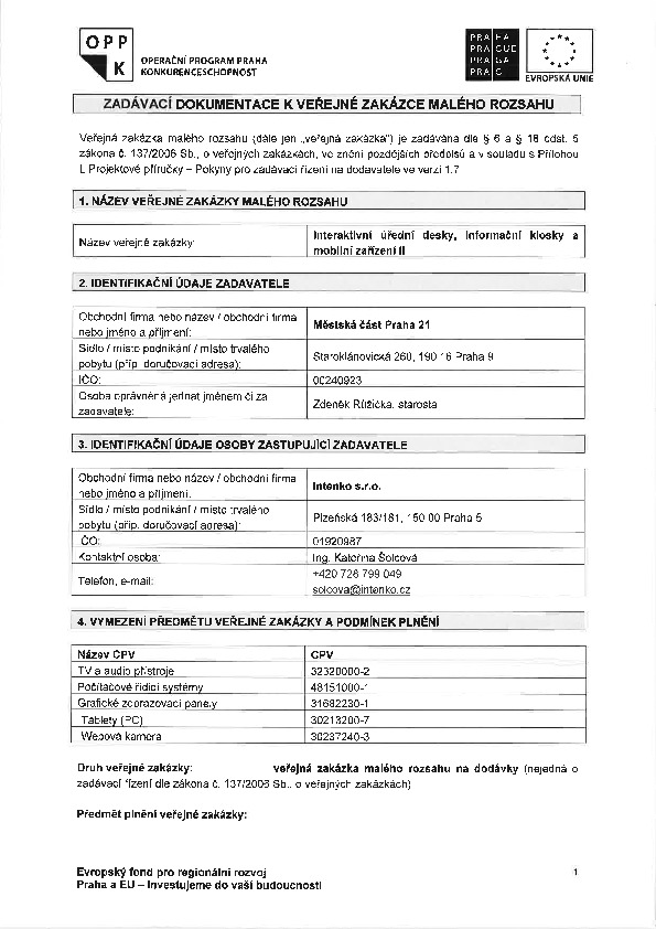
  • Interaktivní úřední desky, informační kiosky a mobilní zařízení II
Veřejná zakázka

Interaktivní úřední desky, informační kiosky a mobilní zařízení II

Tento článek je již archivován a informace zde uvedené již nemusí být aktuální!


Osoba odpovědná za aktuálnost informací: Nedvěd Martin
Archived

Přihlášení / Můj účet

Můžete se přihlásit prostřednictvím sociálních sítí.

Kontakt

Úřad městské části Praha 21

Staroklánovická 260
190 16, Praha 9
tel.: +420 281 012 911
fax.: +420 281 971 531
el. podatelna: podatelna@praha21.cz
ID datové schránky: bz3bbxj
IČ: 00240923

Úřední hodiny

PO: 8:00 - 12:00 / 13:00 - 17:30
ÚT: Není úřední den
ST: 8:00 - 12:00 / 13:00 - 17:30
ČT: Není úřední den
PÁ: 8:00 - 12:00

Matrika v případě svatby omezený provoz